府中市四谷4丁目 全14棟 4号棟 仲介手数料無料
府中市四谷4丁目の新築一戸建てです。2台駐車ができます。ロフトがあるので収納に便利です。床暖房や食洗機等、設備も充実しています。府中市でお住まいをお探しなら、多摩地区に詳しいエージーホームに是非お任せください。まずはお気軽にご連絡ください。
-
ローンシミュレーションこの物件を購入した場合の、月々の支払い価格の一例です。借り入れを保証するものではございません。
- 返済期間
-
- 金利
-
- ボーナス時の増額(1回分)
-
- 借入金額:
-
- 頭金:
-

- 毎月の返済額:
(※元利均等方式 金利5.00%まで ※返済年数5~50年まで入力できます)
(※ボーナスは年2回で計算しています。1000万円まで入力できます)
(※物件購入時、その他諸費用が発生する場合がございます)
情報の見方担当者のコメント 峰ちか

- ≪こちらの物件当社の仲介手数料キャンペーン対象物件です≫
当社(エージーホーム)にてこちらの物件をご契約頂いたお客さまに
他社様では必要となる仲介手数料の約144万円が必要ありません!
いつでも現地ご案内・ご説明させて頂きます。
(ご案内の際はお手数ではございますが事前に当社までご連絡下さい)
お気軽にお問合わせ下さい。是非この機会をお見逃しなく。
※インターネットでのキャンペーンです。お手数で御座いますがお問い合わせの際は「インターネットを見た」とお伝えください。
当社で紹介しています府中市の物件はコチラからご覧になれます。
ポイント・特徴
物件概要
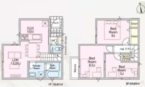
【新築一戸建】 物件番号:98348881 情報更新日:2025年11月07日 次回更新予定日:2025年11月21日所在地 東京都府中市四谷4丁目 交通 間取り/詳細 4LDK/
LDK 16.0帖 1室/洋室 4.5帖 1室/洋室 6.7帖 1室/洋室 5.6帖 1室/洋室 4.5帖 1室
ロフト付建物面積(坪数) 93.14㎡(28.17坪) 価格 4,280万円 駐車場/月額料金 有(2台)/- 土地の敷金/保証金 -/- 借地料/借地期間 -/- 土地権利 所有権 土地面積(坪数) 119.19㎡(36.05坪) 傾斜地部分面積 - 路地状敷地 - 私道負担面積/セットバック 162.92㎡/済
私道負担割合 : 1/10高圧線下面積 - 地目/地勢 宅地/- 接道状況 一方(東 私道 4.5m) 建ぺい率/容積率 40%/80% 用途地域 第一種低層住居専用/第一種中高層住居専用 都市計画 市街化区域 種別/構造 新築一戸建/木造 階建 2階建 築年月(築年数) 2025年 9月 (新築) 総区画数/販売区画数 -/- 向き - 現況 完成済み その他の法令上の制限 景観法/高度地区/準防火地域 取引態様/引渡時期 一般媒介/2025年10月下旬 建築確認番号 - 物件番号 98348881 取引条件の有効期限 2025年11月21日 設備条件 - 建設住宅性能評価書付
- ファミリー向け
- 仲介手数料無料
- ロフト付き
- バルコニー
- 都市ガス
- 公営水道
- 公共下水
- 電気有
- 駐車2台可
- 食器洗い乾燥機
- システムキッチン
- 対面式キッチン
- 浴室乾燥機
- トイレ2ヶ所
- 床暖房
- 床下収納
- 宅配ボックス
- 複層ガラス
備考 ※敷地面積に協定通道路部分1.7m2含む
※円滑な車両通行を目的とした地役権を設定いたします。取扱会社 - 株式会社エージーホーム
- 東京都国立市富士見台2丁目8-4 カスティージョ国立1階
- TEL:042-505-9437
- 東京都知事 (4) 第91004号
※地図上に表示される物件の位置は付近住所に所在することを表すものであり、実際の物件所在地とは異なる場合がございます。
物件お問い合わせ
- 掲載物件数
-
件
- 本日の更新件数
-
件
- 会員物件数
-
件
価格と住所の近い物件
- 府中市四谷4丁目 全8棟 A号棟 仲介手数料無料
- 4,290万円 4LDK/88.70㎡
- 東京都府中市四谷4丁目
- 京王線「中河原」駅 徒歩24分
- 府中市四谷4丁目 全14棟 3号棟 仲介手数料無料
- 4,230万円 4LDK/86.26㎡
- 東京都府中市四谷4丁目
- 京王線「中河原」駅 徒歩19分
- 府中市四谷4丁目 全8棟 E号棟 仲介手数料無料
- 4,350万円 4LDK/88.70㎡
- 東京都府中市四谷4丁目
- 京王線「中河原」駅 徒歩24分
- 府中市是政3丁目 全2棟 1号棟 仲介手数料無料
- 4,190万円 3LDK/68.44㎡
- 東京都府中市是政3丁目
- 西武多摩川線「是政」駅 徒歩9分
- 府中市四谷4丁目 全8棟 F号棟 仲介手数料無料
- 4,390万円 4LDK/86.73㎡
- 東京都府中市四谷4丁目
- 京王線「中河原」駅 徒歩24分
















