国分寺市高木町3丁目 仲介手数料無料
国分寺市高木町3丁目の新築一戸建てです。車は3台並列駐車ができます。ウォークインクローゼット2か所ついた4LDKです。LDKは広々20帖超で、足元から暖かな床暖房完備です。国分寺市でお住まいをお探しなら、多摩地区に詳しいエージーホームに是非お任せください。まずはお気軽にご連絡ください。
ローンシミュレーションこの物件を購入した場合の、月々の支払い価格の一例です。借り入れを保証するものではございません。
- 返済期間
-
- 金利
-
- ボーナス時の増額(1回分)
-
- 借入金額:
-
- 頭金:
-

- 毎月の返済額:
(※元利均等方式 金利5.00%まで ※返済年数5~50年まで入力できます)
(※ボーナスは年2回で計算しています。1000万円まで入力できます)
(※物件購入時、その他諸費用が発生する場合がございます)
担当者のコメント 峰ちか

- ≪こちらの物件当社の仲介手数料キャンペーン対象物件です≫
当社(エージーホーム)にてこちらの物件をご契約頂いたお客さまに
他社様では必要となる仲介手数料の約198万円が必要ありません!
いつでも現地ご案内・ご説明させて頂きます。
(ご案内の際はお手数ではございますが事前に当社までご連絡下さい)
お気軽にお問合わせ下さい。是非この機会をお見逃しなく。
※インターネットでのキャンペーンです。お手数で御座いますがお問い合わせの際は「インターネットを見た」とお伝えください。
当社で紹介しています国分寺市の物件はコチラからご覧になれます。
ポイント・特徴
物件概要
【新築一戸建】 物件番号:97055742 情報更新日:2025年12月06日 次回更新予定日:2025年12月20日| 所在地 | 東京都国分寺市高木町3丁目 | ||
|---|---|---|---|
| 交通 | |||
| 間取り/詳細 |
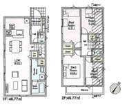
4LDK/ LDK 20.8帖 1室/洋室 9.2帖 1室/洋室 6.3帖 1室/洋室 5.0帖 1室/洋室 4.7帖 1室 ウォークインクローゼット2か所付 |
建物面積(坪数) | 102.40㎡(30.97坪) |
| 価格 | 5,899万円 | ||
| 駐車場/月額料金 | 有(3台)/- | ||
| 土地の敷金/保証金 | -/- | 借地料/借地期間 | -/- |
| 土地権利 | 所有権 | 土地面積(坪数) | 128.88㎡(38.98坪) |
| 傾斜地部分面積 | - | 路地状敷地 | - |
| 私道負担面積/セットバック | -/- | 高圧線下面積 | - |
| 地目/地勢 | 宅地/- | 接道状況 | -(北東 公道 5.0m) |
| 建ぺい率/容積率 | 40%/80% | 用途地域 | 第一種低層住居専用 |
| 都市計画 | 市街化区域 | 種別/構造 | 新築一戸建/木造 |
| 階建 | 2階建 | 築年月(築年数) | 2025年 9月 (予定) |
| 総区画数/販売区画数 | -/- | 向き | - |
| 現況 | 未完成 | その他の法令上の制限 | 高度地区/高さ最高限度有/日影制限有 |
| 取引態様/引渡時期 | 一般媒介/2025年10月下旬 | 建築確認番号 | 第24UDI1W建11327号 |
| 物件番号 | 97055742 | 取引条件の有効期限 | 2025年12月20日 |
| 設備条件 |
|
||
| 備考 | 快適な生活を送れる4LDKの物件情報あります。床暖房が付いているので、エアコンのようにシーズン毎の掃除が不要になりお手入れが簡単になります。仲介手数料無料なので、初期費用を抑えたい方にオススメです。一戸建ての情報だけではなく、地域環境も併せて知りたいという方は、エージーホームまでご連絡ください。国分寺市にある中央線国立周辺の地域環境を知り尽くしております。 | ||
| 取扱会社 |
|
||
※地図上に表示される物件の位置は付近住所に所在することを表すものであり、実際の物件所在地とは異なる場合がございます。
















