国分寺市北町5丁目 全4棟 1号棟 仲介手数料無料
国分寺市北町5丁目の新築一戸建てです。駅徒歩9分の好立地物件です。ウォークインクローゼットがついた4LDKです。食洗機や浴室乾燥機等、設備も充実しています。国分寺市でお住まいをお探しなら、多摩地区に詳しいエージーホームに是非お任せください。まずはお気軽にご連絡ください。
ローンシミュレーションこの物件を購入した場合の、月々の支払い価格の一例です。借り入れを保証するものではございません。
- 返済期間
-
- 金利
-
- ボーナス時の増額(1回分)
-
- 借入金額:
-
- 頭金:
-

- 毎月の返済額:
(※元利均等方式 金利5.00%まで ※返済年数5~50年まで入力できます)
(※ボーナスは年2回で計算しています。1000万円まで入力できます)
(※物件購入時、その他諸費用が発生する場合がございます)
担当者のコメント 峰ちか

- ≪こちらの物件当社の仲介手数料キャンペーン対象物件です≫
当社(エージーホーム)にてこちらの物件をご契約頂いたお客さまに
他社様では必要となる仲介手数料の約196万円が必要ありません!
いつでも現地ご案内・ご説明させて頂きます。
(ご案内の際はお手数ではございますが事前に当社までご連絡下さい)
お気軽にお問合わせ下さい。是非この機会をお見逃しなく。
※インターネットでのキャンペーンです。お手数で御座いますがお問い合わせの際は「インターネットを見た」とお伝えください。
当社で紹介しています国分寺市の物件はコチラからご覧になれます。
ポイント・特徴
物件概要
【新築一戸建】 物件番号:97215584 情報更新日:2026年01月17日 次回更新予定日:2026年01月31日| 所在地 | 東京都国分寺市北町5丁目 | ||
|---|---|---|---|
| 交通 | |||
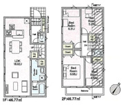
| 間取り/詳細 |
4LDK/ LDK 17.0帖 1室/和室 4.7帖 1室/洋室 6.2帖 1室/洋室 5.0帖 1室/洋室 4.5帖 1室 ウォークインクローゼット付 |
建物面積(坪数) | 91.44㎡(27.66坪) |
| 価格 | 5,830万円 | ||
| 駐車場/月額料金 | 有(1台)/- | ||
| 土地の敷金/保証金 | -/- | 借地料/借地期間 | -/- |
| 土地権利 | 所有権 | 土地面積(坪数) | 115.16㎡(34.83坪) |
| 傾斜地部分面積 | - | 路地状敷地 | - |
| 私道負担面積/セットバック | -/- | 高圧線下面積 | - |
| 地目/地勢 | 山林/- | 接道状況 | 一方(東 公道 7.6m) |
| 建ぺい率/容積率 | 40%/80% | 用途地域 | 第一種低層住居専用 |
| 都市計画 | - | 種別/構造 | 新築一戸建/木造 |
| 階建 | 2階建 | 築年月(築年数) | 2025年 10月 (新築) |
| 総区画数/販売区画数 | -/- | 向き | - |
| 現況 | 完成済み | その他の法令上の制限 | 景観法/航空法/高度地区/水防法 |
| 取引態様/引渡時期 | 一般媒介/2025年11月上旬 | 建築確認番号 | 第R07SHC107944号 |
| 物件番号 | 97215584 | 取引条件の有効期限 | 2026年01月31日 |
| 設備条件 |
|
||
| 備考 | リビングダイニングが17帖あり、折り上げ天井仕様でゆったりとした空間を楽しむことができます。湿気を除去できるためカビや雑菌などの発生が抑えられる、浴室乾燥機付きの物件です。幅広い方にお勧めしたい高ニーズな4LDKの物件です。来訪者を確認できる、TVインターホン付きです。新生活のサポートを致します。不動産情報を求めるのであれば、エージーホームのスタッフまでお気軽にお声かけください。 | ||
| 取扱会社 |
|
||
※地図上に表示される物件の位置は付近住所に所在することを表すものであり、実際の物件所在地とは異なる場合がございます。
















