国分寺市戸倉4丁目 全4棟 4号棟 仲介手数料無料の過去掲載物件情報現況の確認はお気軽にお問い合わせください。
| 所在地 | 東京都国分寺市戸倉4丁目 | ||
|---|---|---|---|
| 交通 | |||
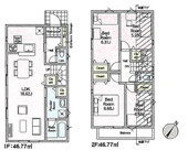
| 築年月(築年数) | 2025年 12月 ( 予定 ) | 種別/構造 | 新築一戸建/木造 |
| 設備条件 |
|
||
【外観】
エージーホーム > (戸建(売買))地域から探す > 国分寺市 > 国分寺市戸倉4丁目 全4棟 4号棟 仲介手数料無料
| 所在地 | 東京都国分寺市戸倉4丁目 | ||
|---|---|---|---|
| 交通 | |||
| 築年月(築年数) | 2025年 12月 ( 予定 ) | 種別/構造 | 新築一戸建/木造 |
| 設備条件 |
|
||
【外観】
件
件
件
