国分寺市戸倉1丁目 全4棟 1号棟 仲介手数料無料
国分寺市戸倉1丁目の新築一戸建てです。駅徒歩7分の好立地物件です。2台駐車スペースがあります。太陽光パネルや食洗機等、設備も充実しています。国分寺市でお住まいをお探しなら、多摩地区に詳しいエージーホームに是非お任せください。まずはお気軽にご連絡ください。
-
ローンシミュレーションこの物件を購入した場合の、月々の支払い価格の一例です。借り入れを保証するものではございません。
- 返済期間
-
- 金利
-
- ボーナス時の増額(1回分)
-
- 借入金額:
-
- 頭金:
-

- 毎月の返済額:
(※元利均等方式 金利5.00%まで ※返済年数5~50年まで入力できます)
(※ボーナスは年2回で計算しています。1000万円まで入力できます)
(※物件購入時、その他諸費用が発生する場合がございます)
情報の見方担当者のコメント 峰ちか

- ≪こちらの物件当社の仲介手数料キャンペーン対象物件です≫
当社(エージーホーム)にてこちらの物件をご契約頂いたお客さまに
他社様では必要となる仲介手数料の約244万円が必要ありません!
いつでも現地ご案内・ご説明させて頂きます。
(ご案内の際はお手数ではございますが事前に当社までご連絡下さい)
お気軽にお問合わせ下さい。是非この機会をお見逃しなく。
※インターネットでのキャンペーンです。お手数で御座いますがお問い合わせの際は「インターネットを見た」とお伝えください。
当社で紹介しています国分寺市の物件はコチラからご覧になれます。
ポイント・特徴
物件概要
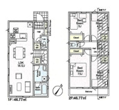
【新築一戸建】 物件番号:98220140 情報更新日:2025年11月07日 次回更新予定日:2025年11月21日所在地 東京都国分寺市戸倉1丁目 交通 間取り/詳細 4LDK/
LDK 18.4帖 1室/洋室 8.2帖 1室/洋室 6.0帖 1室/洋室 5.5帖 2室建物面積(坪数) 102.31㎡(30.94坪) 価格 7,298万円 駐車場/月額料金 有(2台)/- 土地の敷金/保証金 -/- 借地料/借地期間 -/- 土地権利 所有権 土地面積(坪数) 113.36㎡(34.29坪) 傾斜地部分面積 - 路地状敷地 - 私道負担面積/セットバック -/- 高圧線下面積 - 地目/地勢 宅地/- 接道状況 一方(南西 公道 4.0m) 建ぺい率/容積率 50%/100% 用途地域 第一種低層住居専用 都市計画 市街化区域 種別/構造 新築一戸建/木造 階建 2階建 築年月(築年数) 2025年 12月 (予定) 総区画数/販売区画数 -/- 向き - 現況 未完成 その他の法令上の制限 準防火地域/高さ最高限度有/日影制限有 取引態様/引渡時期 一般媒介/2026年1月下旬 建築確認番号 第24UDI1W建10153号 物件番号 98220140 取引条件の有効期限 2025年11月21日 設備条件 - 閑静な住宅地
- ファミリー向け
- 仲介手数料無料
- バルコニー
- 都市ガス
- 公営水道
- 公共下水
- 電気有
- 駐車2台可
- 食器洗い乾燥機
- 対面式キッチン
- 浴室乾燥機
- トイレ2ヶ所
- 床下収納
- ウォークインクロゼット
備考 国分寺郵便局まで歩いて4分です。広々としたリビングダイニングが18帖以上あるので、日々の生活に余裕が生まれます。浴室乾燥機のあるお風呂場は洗濯物を干すときにも便利です。駅徒歩7分の物件です。エージーホームのスタッフが国分寺市や西武国分寺線恋ヶ窪付近の一戸建て探しをサポートいたします。お気軽に地域の情報などもお尋ねください。 取扱会社 - 株式会社エージーホーム
- 東京都国立市富士見台2丁目8-4 カスティージョ国立1階
- TEL:042-505-9437
- 東京都知事 (4) 第91004号
※地図上に表示される物件の位置は付近住所に所在することを表すものであり、実際の物件所在地とは異なる場合がございます。
物件お問い合わせ
- 掲載物件数
-
件
- 本日の更新件数
-
件
- 会員物件数
-
件
同じエリアの新築一戸建
価格と住所の近い物件
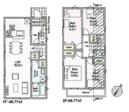
- 国分寺市戸倉1丁目 全4棟 3号棟 仲介手数料無料
- 7,298万円 3LDK/95.55㎡
- 東京都国分寺市戸倉1丁目
- 西武国分寺線「恋ヶ窪」駅 徒歩7分
- 国分寺市戸倉1丁目 全4棟 4号棟 仲介手数料無料
- 7,098万円 4LDK/104.85㎡
- 東京都国分寺市戸倉1丁目
- 西武国分寺線「恋ヶ窪」駅 徒歩7分
- 国分寺市東戸倉1丁目 全3棟 2号棟 仲介手数料無料
- 6,490万円 4LDK/93.54㎡
- 東京都国分寺市東戸倉1丁目
- 西武国分寺線「恋ヶ窪」駅 徒歩8分
- 国分寺市東戸倉1丁目 全3棟 1号棟 仲介手数料無料
- 6,390万円 4LDK/93.54㎡
- 東京都国分寺市東戸倉1丁目
- 西武国分寺線「恋ヶ窪」駅 徒歩8分
- 国分寺市戸倉4丁目 全4棟 2号棟 仲介手数料無料
- 6,080万円 3LDK/94.40㎡
- 東京都国分寺市戸倉4丁目
- 西武国分寺線「恋ヶ窪」駅 徒歩12分

















