国分寺市東戸倉1丁目 全3棟 1号棟 仲介手数料無料
国分寺東恋ヶ窪四郵便局まで496mです。前面道路6m以上は確保しているので車の出し入れもラクラクです。駅徒歩8分の物件の好立地物件です。クロゼットが3ヶ所あるので、衣服など荷物が沢山ある方も収納スペースに困りません。エージーホームで納得のできる住まい選びをしませんか。住環境をより良いものにしていきましょう。当社では数多くの不動産情報を取り扱っております。
ローンシミュレーションこの物件を購入した場合の、月々の支払い価格の一例です。借り入れを保証するものではございません。
- 返済期間
-
- 金利
-
- ボーナス時の増額(1回分)
-
- 借入金額:
-
- 頭金:
-

- 毎月の返済額:
(※元利均等方式 金利5.00%まで ※返済年数5~50年まで入力できます)
(※ボーナスは年2回で計算しています。1000万円まで入力できます)
(※物件購入時、その他諸費用が発生する場合がございます)
担当者のコメント 峰ちか

- ≪こちらの物件当社の仲介手数料キャンペーン対象物件です≫
当社(エージーホーム)にてこちらの物件をご契約頂いたお客さまに
他社様では必要となる仲介手数料の約214万円が必要ありません!
いつでも現地ご案内・ご説明させて頂きます。
(ご案内の際はお手数ではございますが事前に当社までご連絡下さい)
お気軽にお問合わせ下さい。是非この機会をお見逃しなく。
※インターネットでのキャンペーンです。お手数で御座いますがお問い合わせの際は「インターネットを見た」とお伝えください。
当社で紹介しています国分寺市の物件はコチラからご覧になれます。
ポイント・特徴
物件概要
【新築一戸建】 物件番号:98537719 情報更新日:2025年11月07日 次回更新予定日:2025年11月21日| 所在地 | 東京都国分寺市東戸倉1丁目 | ||
|---|---|---|---|
| 交通 | |||
| 間取り/詳細 |
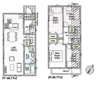
4LDK/ LDK 18.5帖 1室/洋室 6.6帖 1室/洋室 6.3帖 1室/洋室 5.2帖 1室/洋室 4.4帖 1室 |
建物面積(坪数) | 93.54㎡(28.29坪) |
| 価格 | 6,390万円 | ||
| 駐車場/月額料金 | 有/- | ||
| 土地の敷金/保証金 | -/- | 借地料/借地期間 | -/- |
| 土地権利 | 所有権 | 土地面積(坪数) | 118.98㎡(35.99坪) |
| 傾斜地部分面積 | - | 路地状敷地 | - |
| 私道負担面積/セットバック | -/- | 高圧線下面積 | - |
| 地目/地勢 | 宅地/- | 接道状況 | 一方(北西 公道 6.0m) |
| 建ぺい率/容積率 | 40%/80% | 用途地域 | 第一種低層住居専用 |
| 都市計画 | 市街化区域 | 種別/構造 | 新築一戸建/木造 |
| 階建 | 2階建 | 築年月(築年数) | 2026年 1月 (予定) |
| 総区画数/販売区画数 | -/- | 向き | - |
| 現況 | 未完成 | その他の法令上の制限 | 高度地区/高さ最高限度有 |
| 取引態様/引渡時期 | 一般媒介/2026年1月下旬 | 建築確認番号 | 第R07SHC115703号 |
| 物件番号 | 98537719 | 取引条件の有効期限 | 2025年11月21日 |
| 設備条件 |
|
||
| 備考 | 近くにはセブンイレブン 国分寺東戸倉店(徒歩4分)がありちょっとした買い物に便利です。新生活をピカピカの新築戸建て物件で始めてみませんか。駅徒歩8分の物件です。不動産探しをエージーホームのスタッフがサポート致します。西武国分寺線恋ヶ窪周辺を新たな生活の拠点とするなら、お気軽にお問い合わせくださいませ。 | ||
| 取扱会社 |
|
||
※地図上に表示される物件の位置は付近住所に所在することを表すものであり、実際の物件所在地とは異なる場合がございます。
















